Couloir de Nage Premium
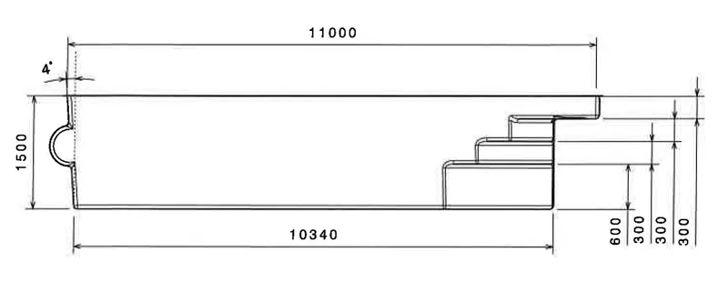
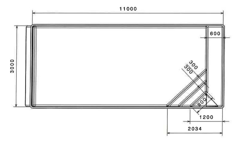
Spécialiste des piscines en coque polyester, PID vous propose le modèle Couloir de Nage Premium, une piscine coque rectangulaire 11×3 avec un coffre à volet intégré.

Longeur*
11 m
Largeur*
3 m
Profondeur*
1.5 m
Fond Plat
* Coloris et rendus d’eau non contractuels. Côtes et dimensions données à titre indicatif, elles peuvent varier de plus ou moins 2 %.


